Działki budowlane w Szczebrzeszynie o pow.0,1157. SPRZEDANA!
Działki budowlane położone w Szczebrzeszynie przy ul. Górnej:
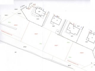
Aktualnie w sprzedaży działki:
1) Nr 1665/6 powierzchnia 0,1169 ha
2) Nr 1665/7 powierzchnia 0,1163 ha
3) Nr 1662/7 powierzchnia 0,1157 ha
4) Nr 1662/8 powierzchnia 0,1161 ha
Dostępne media: prąd, gaz, wodociąg, kanalizacja sanitarna.
Zgodnie z Miejscowym Planem Zagospodarowania Przestrzennego Miasta Szczebrzeszyna działki znajdują się w obszarze zabudowy mieszkaniowej jednorodzinnej - jako podstawowe przeznaczenie zabudowa jednorodzinna z dopuszczeniem działalności gospodarczej ( w zakresie nie oddziałującym znacząco na środowisko i zdrowie ludzi), związanej z zaopatrzeniem i bytowaniem ludności wraz z obiektami i urządzeniami towarzyszącymi.
Niniejsza oferta dotyczy działki nr 1662/7 o powierzchni 0, 1157 ha
„Działki zlokalizowane w Szczebrzeszynie, miasteczku na terenie malowniczego Roztoczu Zachodniego. Szczebrzeszyn to ciekawa historyczne miejscowość w województwie lubelskim, leżące nad samym Wieprzem, 25 km od Zamościa. Szczebrzeszyn znany jest każdemu Polakowi, za sprawą wiersza Jana Brzechwy, który rozpoczyna się słowami "W Szczebrzeszynie chrząszcz brzmi w trzcinie..." Symbol ten wykorzystywany jest w promocji miasta.
Główne atrakcje w Szczebrzeszynie:
- Pomnik Chrząszcza, ul. Klukowskiego - chrząszcz z drewna wita turystów u podnóża Góry Zamkowej, stoi tu od 2002 roku
- Pomnik Chrząszcza, Rynek - chrząszcz stoi tu od 2011 roku, jest śliczny i chętnie fotografowany przez turystów
- Kościół Św. Mikołaja, Rynek, pl. Kościuszki - obecna świątynia pochodzi z początku XVII wieku, z ciekawą bramą i dzwonnicą, z elementami renesansu lubelskiego
- Synagoga, ul. Sądowa - jedna z najstarszych synagog w Polsce, obecnie Miejski Dom Kultury oraz punkt Informacji Turystycznej- Prawosławna Cerkiew Zaśnięcia NMP, ul. Cmentarna - klucz dostępny jest w IT
- Kościół Św. Katarzyny Alekandryjskiej
- Cmentarz żydowski, ul. Cmentarna - za cerkwią trzeba iść dalej by zajść na kirkut, trudno dostępny dla turystów
- Kościół Św. Katarzyny, ul. Klukowskiego - znajduje się przy szpitalu, ciekawostką jest, że jest to krzywy kościół gdyż oś została zachwiana i prezbiterium przesunięte jest w lewo
- Cerkiew w Szczebrzeszynie
- Grodzisko ze śladami fosy, ul. Zamkowa
- Park nad Wieprzem, ul. Targowa - za Halą Targową i centrum handlowym znajduje się ładny parczek nad rzeką, gdzie dodatkowo mają powstać w przyszłości zagospodarowane bulwary
- Stary Młyn, ul. Klukowskiego - dziś jest to już młyn elektryczny
- Wąwozy lessowe - otaczają Szczebrzeszy, to bardzo ciekawe miejsce na spacery, przejażdżki rowerowe, a nawet przejażdżki bryczką
- Szczebrzeszyński Park Krajobrazowy - malowniczy obszar położyny na zachód od Szczebrzeszyna, obejmuje m.in. wąwozy lessowe
- Ścieżki rowerowe i szlaki piesze - znakowane trasy w tym ścieżka turystyczno-poznawcza Szczebrzeszyn-Kawęczynek znakowana jako kwadrat z białym tłem i czerwonym skośnym paskiem, Centralny Szlak Rowerowy Roztocza znakowany na czerowno, Centralny Szlak Pieszy Roztocza znakowany na niebiesko, szlak zielony, szlak czarny”.
Prezentacja nieruchomości po wcześniejszym umówieniu z przedstawicielem biura.
Wraz z Właścicielami zwracamy się z prośbą o uszanowanie prywatności i nie przybywanie na miejsce bez zapowiedzi i opiekuna z biura nieruchomości.
Od osób kupujących nie pobieramy wynagrodzenia.
Kupujący otrzymuje pełne wsparcie w transakcji i nie ponosi kosztów wynagrodzenia.
Gwarantujemy bezpieczną, rzeczowo-prawną obsługę transakcji.
OFERUJEMY BEZPŁATNĄ I PROFESJONALNĄ POMOC W WYBORZE NAJKORZYSTNIEJSZEJ OFERTY KREDYTOWEJ. PONAD 25 BANKÓW W JEDNYM MIEJSCU.
Niniejsza oferta jest informacją handlową i nie może być uznawana za ofertę w rozumieniu art. 66 ust. 1 Kodeksu Cywilnego. Stanowi ona zaproszenie do rokowań w rozumieniu art. 71 Kodeksu Cywilnego.
Informujemy iż wszystkie materiały oraz zdjęcia znajdujące się na naszych stronach są naszego autorstwa, stanowią własność Agencji Nieruchomości LOKUM i prawa autorskie są zastrzeżone. Kopiowanie, przetwarzanie czy też rozpowszechnianie tych materiałów w całości lub w części bez naszej zgody jest zabronione, jak również stanowi naruszenie praw autorskich, co za tym idzie będzie zgłaszane odpowiednim organom. Podstawa prawna Dz.U. 94 nr24, poz 83, spros.: Dz.U. 94 nr43, poz 170.




















