Mieszkanie dwupoziomowe z ogródkiem Zamość Infułacka, cena 550 tys. zł
Zapraszamy do zakupu nieruchomości:
- lokal mieszkalny o powierzchni całkowitej 160,73 m2 .
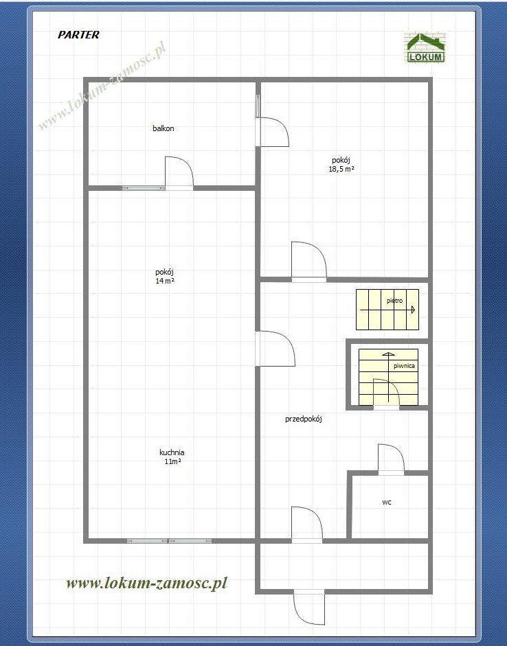
Segment mieszkalny z oddzielnym wejściem i wiatrołapem o powierzchni użytkowej 112,58 m2 usytuowany na dwóch kondygnacjach - parterze i piętrze, w pełni podpiwniczony (trzy pomieszczenia gospodarcze o pow. 48,15 m2 )
Z prawem własności lokalu związany jest udział w prawie własności gruntu. Właściciel lokalu korzysta na zasadzie wyłączności z przydomowego ogródka.
Budynek ocieplony, wyposażony w przyłącza: energia elektryczna, gaz, woda, kanalizacja sanitarna.
Na parterze znajduje się pokój dzienny z kuchnią, pokój, wc oraz hall z komunikacją. Na piętrze: trzy sypialnie, duża łazienka oraz przedpokój.
Stolarka okienna: okna PCV.
Budynek położony w doskonałej lokalizacji – przy ul. Infułackiej w Zamościu. Nieruchomość położona jest w centrum miasta co daje dostęp do wszelkich udogodnień. W pobliżu szkoła, przedszkola, boiska i place zabaw dla dzieci, przychodnia, apteka, sklepy spożywcze i supermarkety – w tym Kaufland, Intermarche . Bliskie sąsiedztwo Starówki i parku daje możliwość korzystania z wszelkich walorów i atrakcji Zamościa.
Zapraszamy również na naszą stronę: https://www.facebook.com/Agencja-Nieruchomości-Lokum-1233183243362013
Gwarantujemy bezpieczną, rzeczowo-prawną obsługę transakcji.
Oferujemy:
- POŚREDNICTWO W SPRZEDAŻY NIERUCHOMOŚCI
- BEZPŁATNĄ I PROFESJONALNĄ POMOC W WYBORZE NAJKORZYSTNIEJSZEJ OFERTY KREDYTOWEJ. PONAD 25 BANKÓW W JEDNYM MIEJSCU.
- WYKONUJEMY ŚWIADECTWA CHARAKTERYSTYKI ENERGETYCZNEJ
- POMOC W WYPROWADZENIU TRUDNEGO STANU PRAWNEGO NIERUCHOMOŚCI
Prezentacja nieruchomości po wcześniejszym umówieniu z przedstawicielem biura.
Wraz z Właścicielami zwracamy się z prośbą o uszanowanie prywatności i nie przybywanie na miejsce bez zapowiedzi i opiekuna z biura nieruchomości.
Niniejsza oferta jest informacją handlową i nie może być uznawana za ofertę w rozumieniu art. 66 ust. 1 Kodeksu Cywilnego. Stanowi ona zaproszenie do rokowań w rozumieniu art. 71 Kodeksu Cywilnego.
Informujemy iż wszystkie materiały oraz zdjęcia znajdujące się na naszych stronach są naszego autorstwa, stanowią własność Agencji Nieruchomości LOKUM i prawa autorskie są zastrzeżone. Kopiowanie, przetwarzanie czy też rozpowszechnianie tych materiałów w całości lub w części bez naszej zgody jest zabronione, jak również stanowi naruszenie praw autorskich, co za tym idzie będzie zgłaszane odpowiednim organom. Podstawa prawna Dz.U. 94 nr24, poz 83, spros.: Dz.U. 94 nr43, poz 170.














